Photo 1
Photo 2
Photo 3

Description

• Single-slope roof with 26' eave height on the low side and 31' on the high side • Two (16' x 16') grade-level roll-up doors • Power supply: 3-phase, 480 volts, 400 amps • Concrete-fenced outdoor storage yard • Conveniently located near SH 249 and the Grand Parkway

Listing Details

  • Tenancy

    Single

  • Space Type

    industrial

  • Sub Category

    warehouse

  • Date Listed

    6/30/2025

  • Ceiling Height / Slab to Slab

    31 Ft

Property Specifics

  • Property Name

    Building 3

  • Property Class

    B

  • No of Stories

    1

  • Year Built

    2024

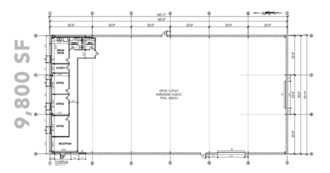
  • Building Size

    9,800 SF

  • Lot Size

    9.5 AC

Property Amenities

Unit Amenities

Fenced Lot
High Ceilings
Natural Light

Location Amenities

Airport
Commuter Rail
Freight Port
Public Transportation
Railroad