Description
• Single-slope roof with 26' eave height on the low side and 31' on the high side • Two (16' x 16') grade-level roll-up doors • Power supply: 3-phase, 480 volts, 400 amps • Concrete-fenced outdoor storage yard • Conveniently located near SH 249 and the Grand Parkway
Listing Details
- Tenancy
Single
- Space Type
industrial
- Sub Category
warehouse
- Date Listed
6/30/2025
- Ceiling Height / Slab to Slab
31 Ft
Property Specifics
- Property Name
Building 9
- Property Class
B
- No of Stories
1
- Year Built
2024
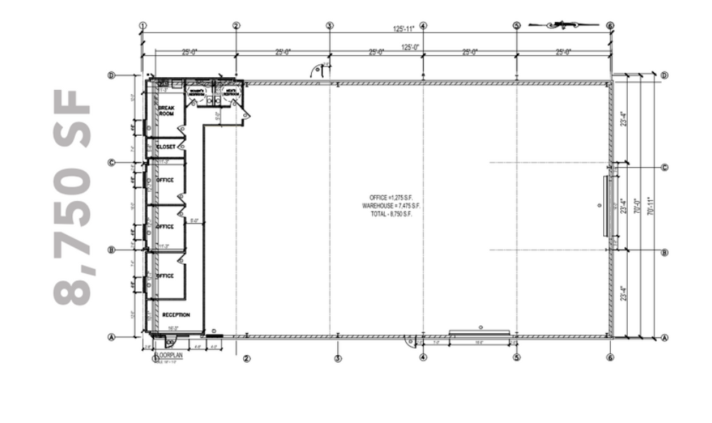
- Building Size
8,750 SF
- Lot Size
9.5 AC
Property Amenities
Unit Amenities
Fenced Lot
High Ceilings
Onsite Parking
Location Amenities
Airport
Commuter Rail
Freight Port
Public Transportation
Railroad


